Projekty
Soutěže
Design
Ateliér
Kontakt
Projekty
Soutěže
Design
Ateliér
Kontakt
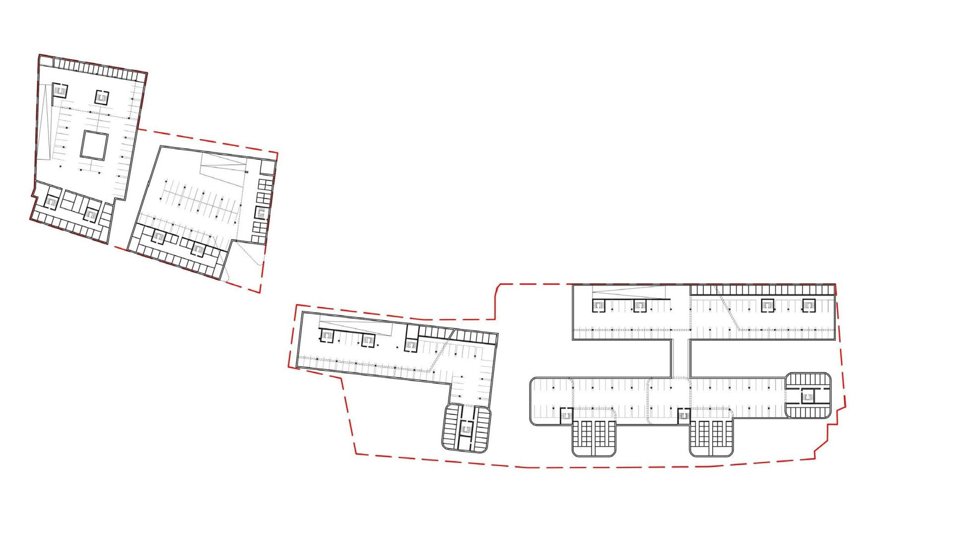
Územní studie Cukrovarská
Plzeň, 2021
schwarzplan
schéma
situace
podzemní podlaží
přízemí
typické podlaží
převýšená podlaží - věže
fotografie fyzického modelu
bilance
Územní studie Cukrovarská
Plzeň
2021
autoři návrhu: Martin Řežábek, Pavel Táborský, Ondřej Hilský
You may also like
Rozhledna Mezná
2013
TELTTA
2019
Urbanistická studie Velký osek
2010
Bytový dům Libeň
2015
Kavárna Barrandov
2016
Rodinný dům Klecany
2013
Pokladna Botanické zahrady
2010
Hřebenka
2008
Vila Křeslice
2022
Přestavba staré pošty
2017
↑
Back to Top