Schwarzplan
11
půdorysy
řez AA', řez BB'
řez CC', řez DD'
řez EE'
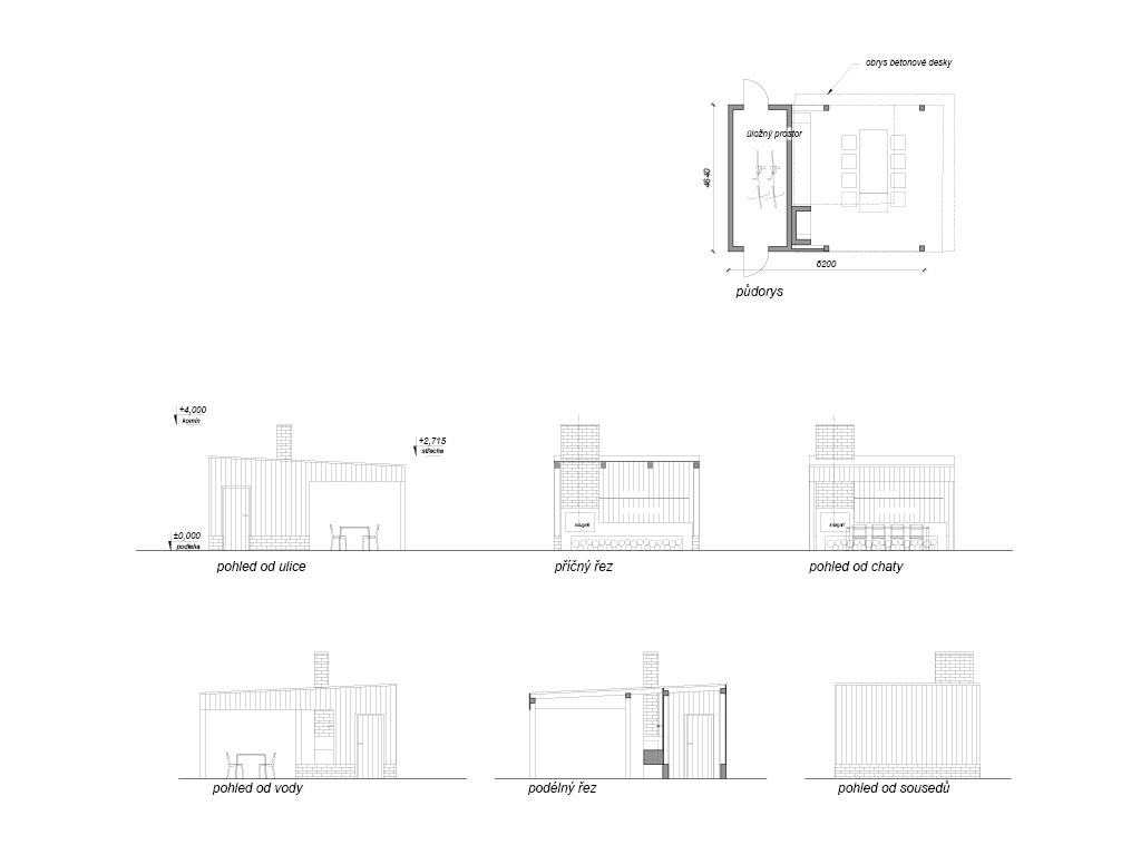
venkovní kuchyn
pohled S
pohled V
pohled J
pohled Z
CHATA AIDA
Návrh nové chaty pro rodinné užívání s možností přespání více hostů. Kuchyň má být od ostatního prostoru oddělená, koupelna v každém patře a samostatný záchod. Vzniknout mají čtyři ložnice, obývák a jídelna propojené s výstupem na krytou terasu.
Jako doplňková stavba má vzniknout venkovní kuchyň. Chata má mít malé nároky na údržbu, užívání bude občasné, ale s komfortem běžného bydlení.
V budoucnu se uvažuje i o stavbě sauny na břehu jezera, které nyní není součástí návrhu.
Jako doplňková stavba má vzniknout venkovní kuchyň. Chata má mít malé nároky na údržbu, užívání bude občasné, ale s komfortem běžného bydlení.
V budoucnu se uvažuje i o stavbě sauny na břehu jezera, které nyní není součástí návrhu.
Má být na první pohled poznat, že jde o rekreační objekt. Vzhled chaty má evokovat prázdniny, pohodu, odpočinek.. Dalším záměrem bylo docílit vzhledu, který nebude jasně odkazovat na rok vzniku, ale bude nezávislý na módních trendech, bude naopak stálý a času odolný. V neposlední řadě je chata lehce sentimentální, což se projevuje jak v jejím pojmenování, tak i užitím některých prvků pro vybavení interiéru (kamna?).
Navržena je dřevostavba, která je schopná se rychle natopit při víkendových příjezdech. Dřevěná konstrukce je posazena na podezdívku, aby byla lépe ochráněna před vlhkostí. Stavba používá dřevo nejen jako konstrukční materiál, ale také jako hlavní pohledový povrch. V interiéru má zachován přírodní vzhled a v exteriéru je zvolena šedomodrý olejový nátěr Biofa Traubengrau. Okna a vnější dveře jsou dřevěná, lakovaná v odstínu tmavé šedomodré.
Prkna jsou v exteriéru pokládaná svisle a krytina střechy je plechová falcovaná. Volba těchto materiálů a prostředků odkazuje na zajímavou a cennou stavbu obecní plovárny.
Navržena je dřevostavba, která je schopná se rychle natopit při víkendových příjezdech. Dřevěná konstrukce je posazena na podezdívku, aby byla lépe ochráněna před vlhkostí. Stavba používá dřevo nejen jako konstrukční materiál, ale také jako hlavní pohledový povrch. V interiéru má zachován přírodní vzhled a v exteriéru je zvolena šedomodrý olejový nátěr Biofa Traubengrau. Okna a vnější dveře jsou dřevěná, lakovaná v odstínu tmavé šedomodré.
Prkna jsou v exteriéru pokládaná svisle a krytina střechy je plechová falcovaná. Volba těchto materiálů a prostředků odkazuje na zajímavou a cennou stavbu obecní plovárny.
Chata Aida
Babylon
studie 2021
autor: Martin Řežábek